Общая информация о системе Aluprof MB-SLIMLINE
Оконная система MB-Slimline с терморазрывом и высокими теплоизоляционными характеристиками отличается очень
малой шириной алюминиевых профилей, видимых снаружи конструкции. Система разработана для реализации элементов архитектурного оформления экстерьера, например, различных типов окон, открывающихся внутрь (поворотные, с нижним подвесом, откидные), а также неподвижных окон, отличающихся высокими тепло- и звукоизоляционными характеристиками, герметичностью и воздухонепроницаемостью, а также высокой прочностью конструкции.
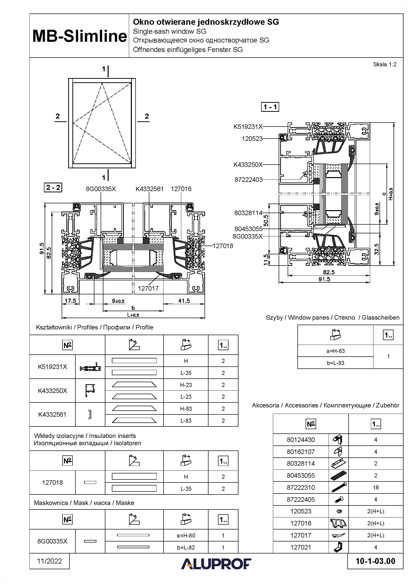
Створки могут быть двух типов – видимые или невидимые (SG) на внешней стороне конструкции. Внешний вид неподвижных окон и окон, открывающихся с использованием невидимых створок, практически
идентичны.
Система отвечает всем требованиям энергосбережения и защиты окружающей среды.
ОСОБЕННОСТИ ДВЕРНОЙ И ОКОННОЙ СИСТЕМЫ Aluprof MB-SLIMLINE
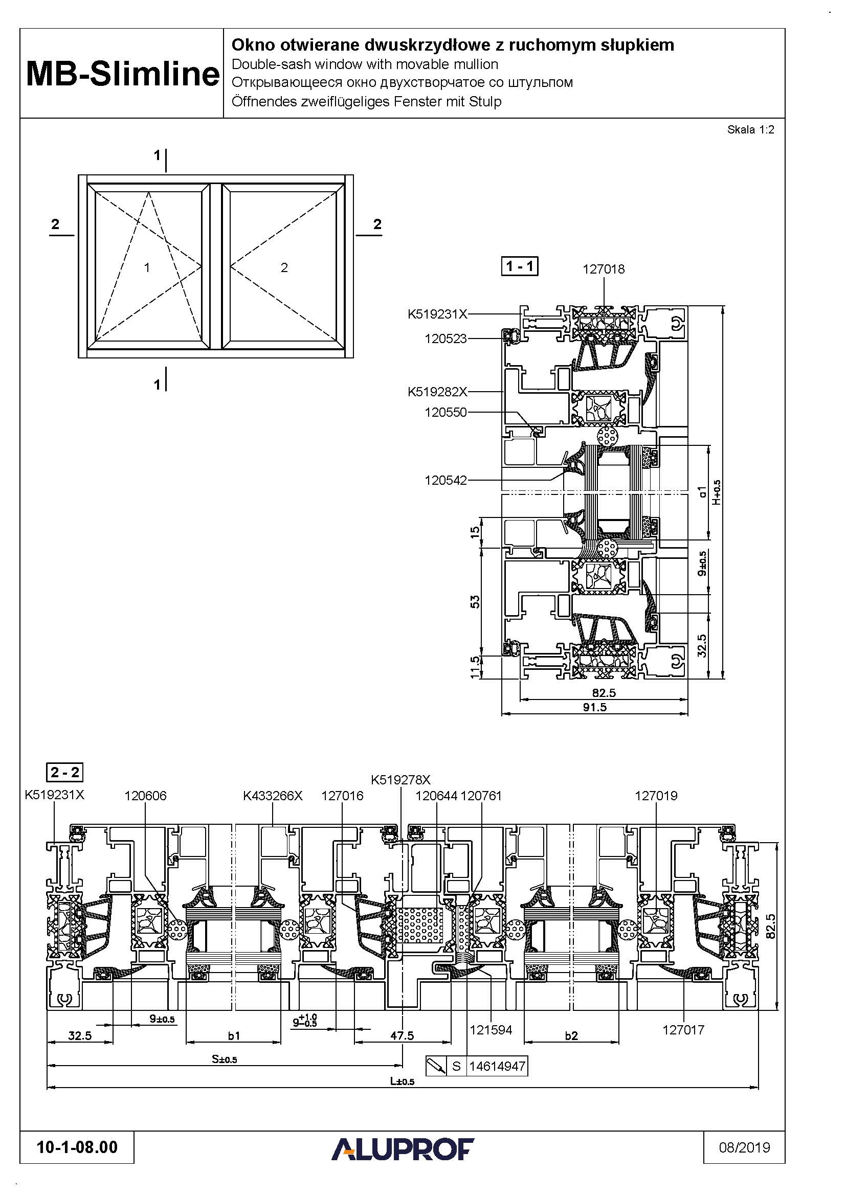
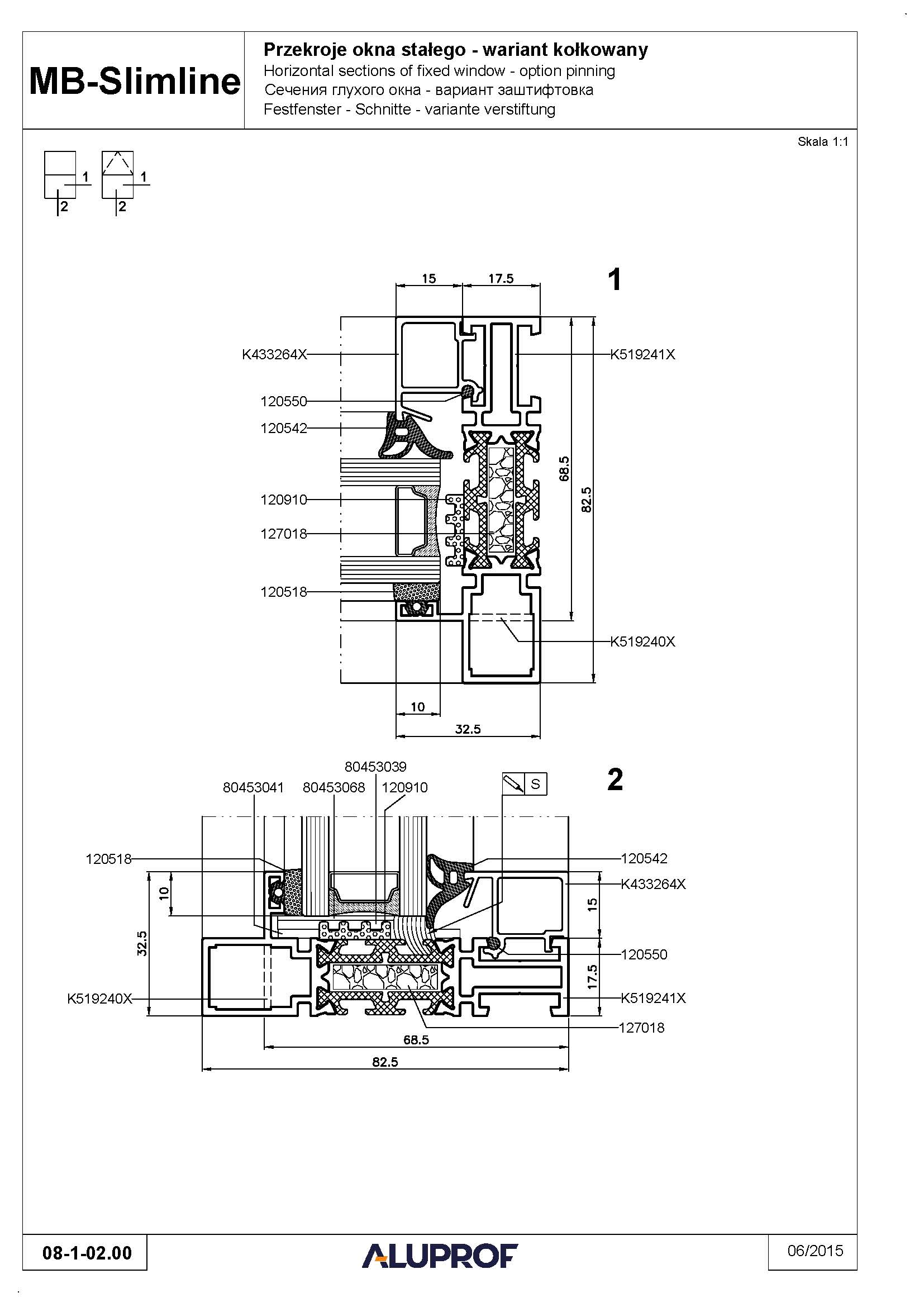
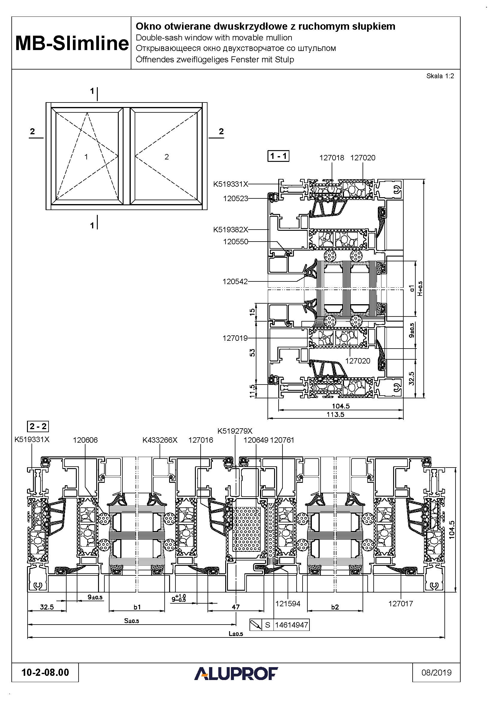
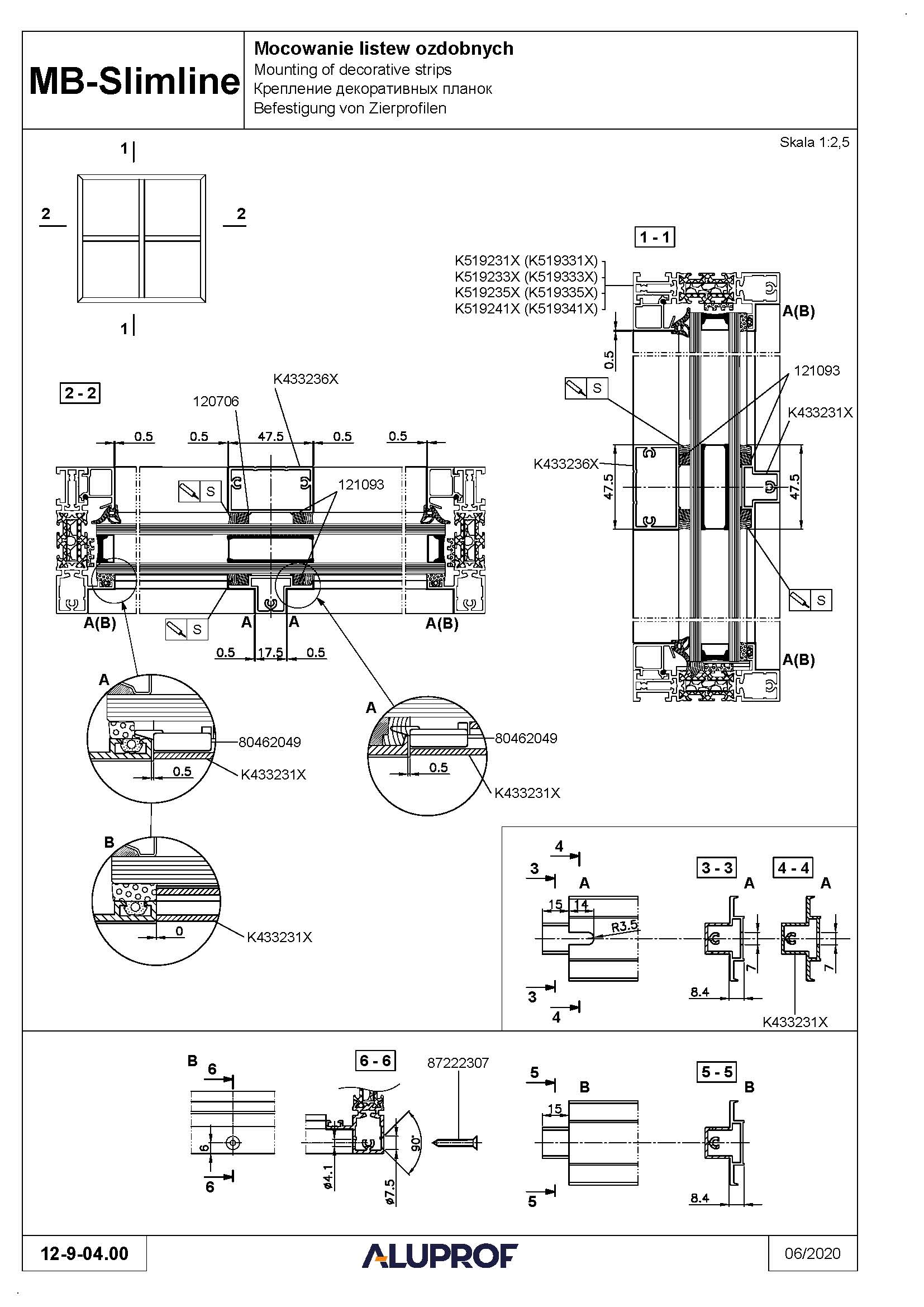
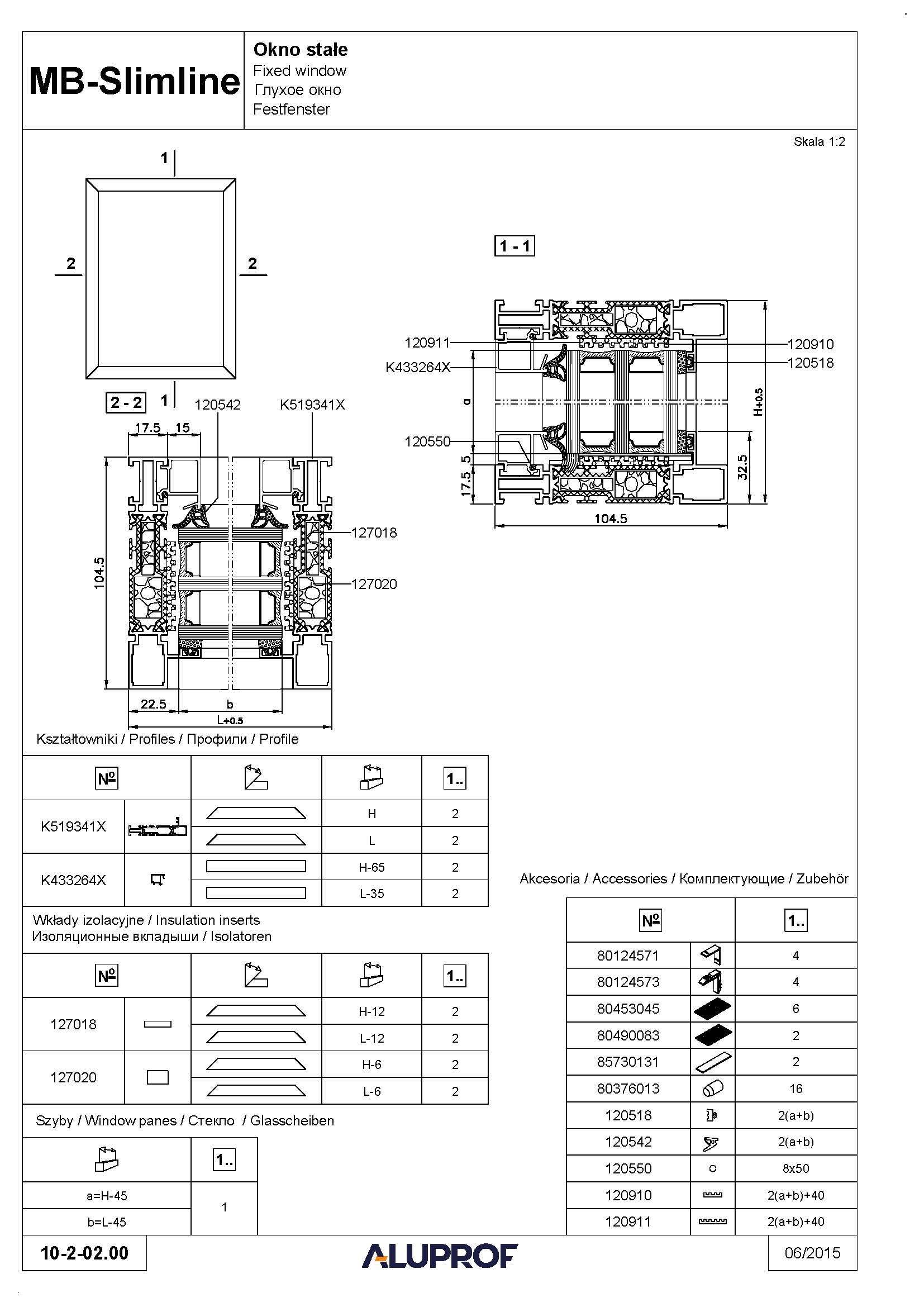
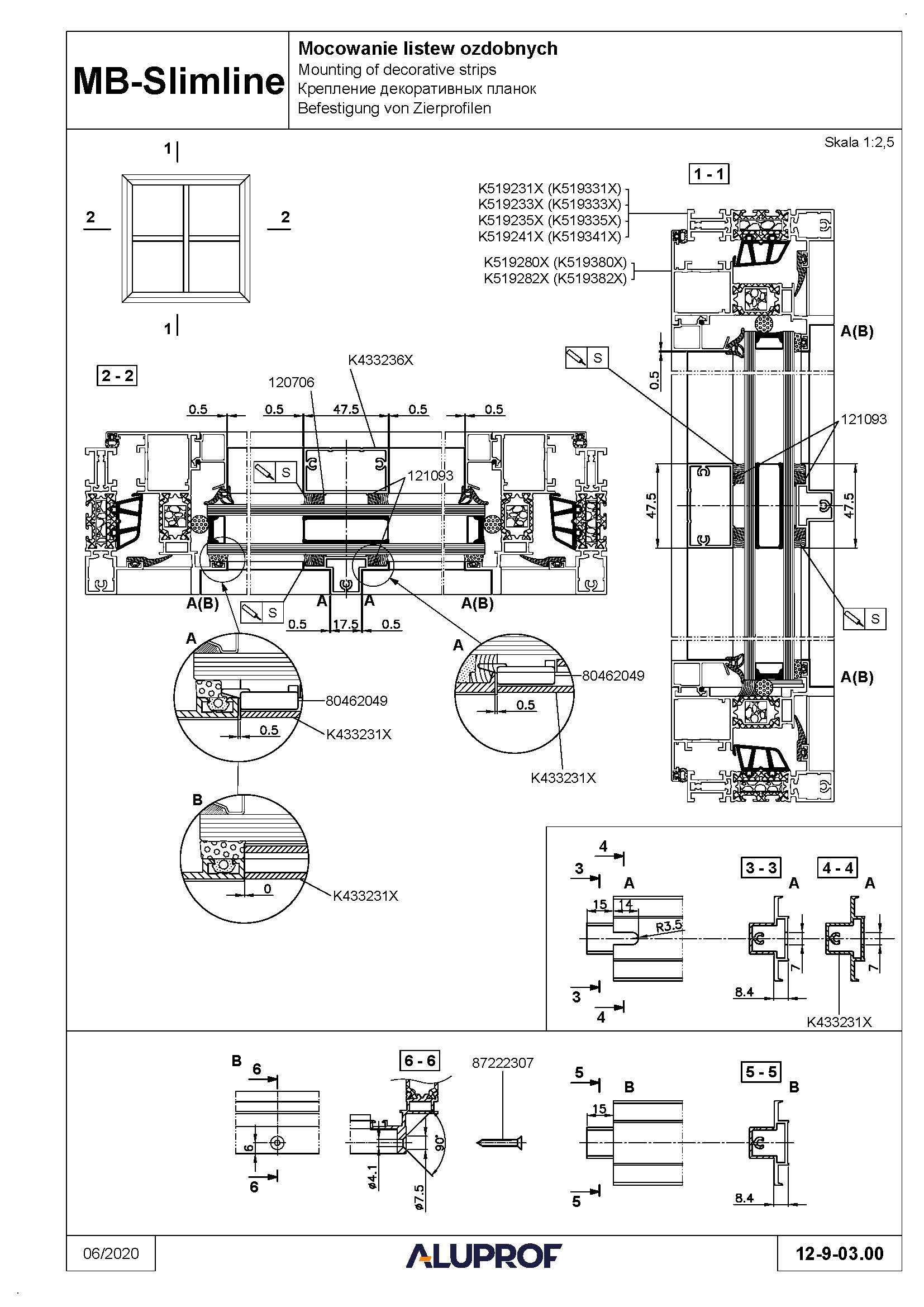
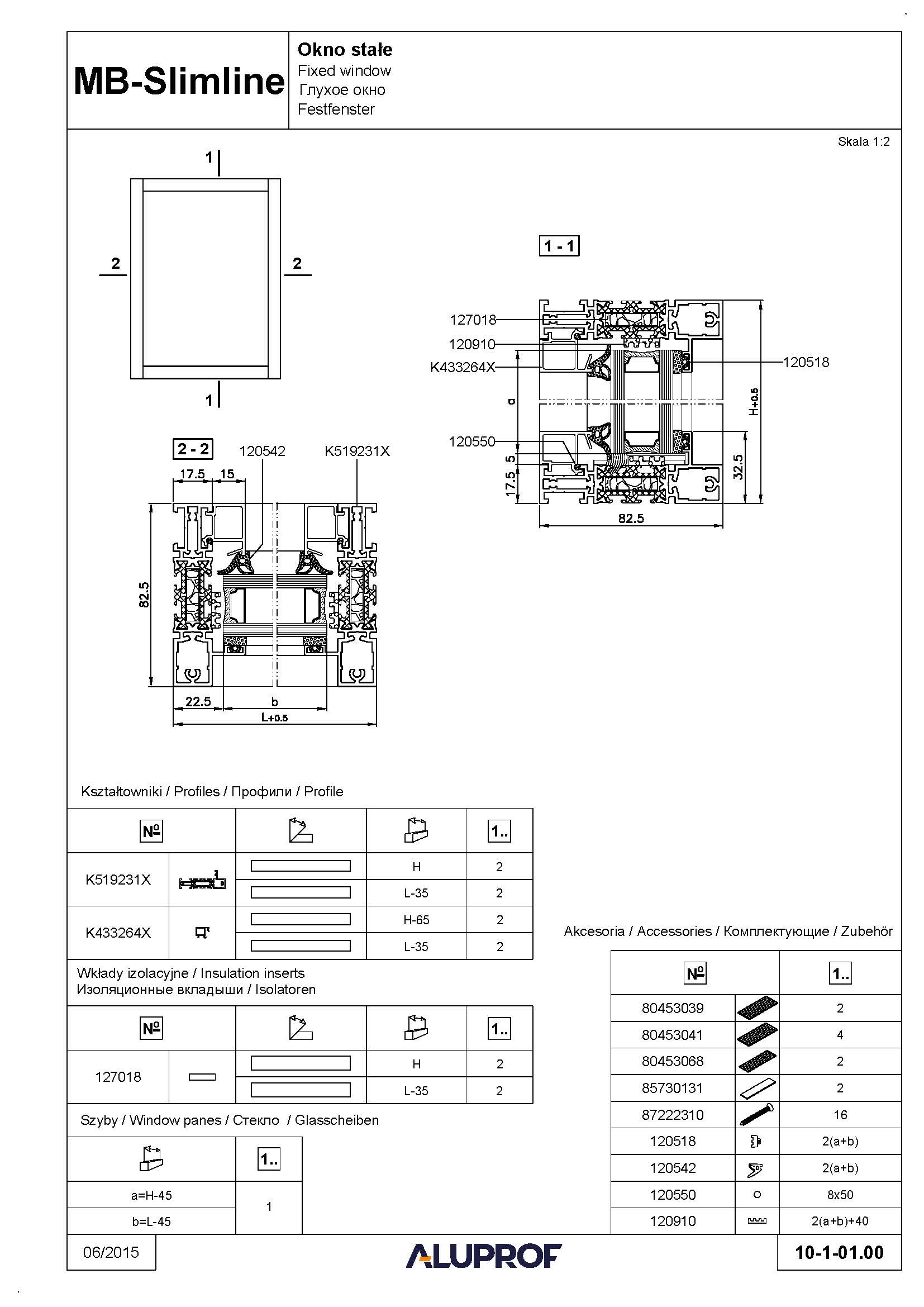
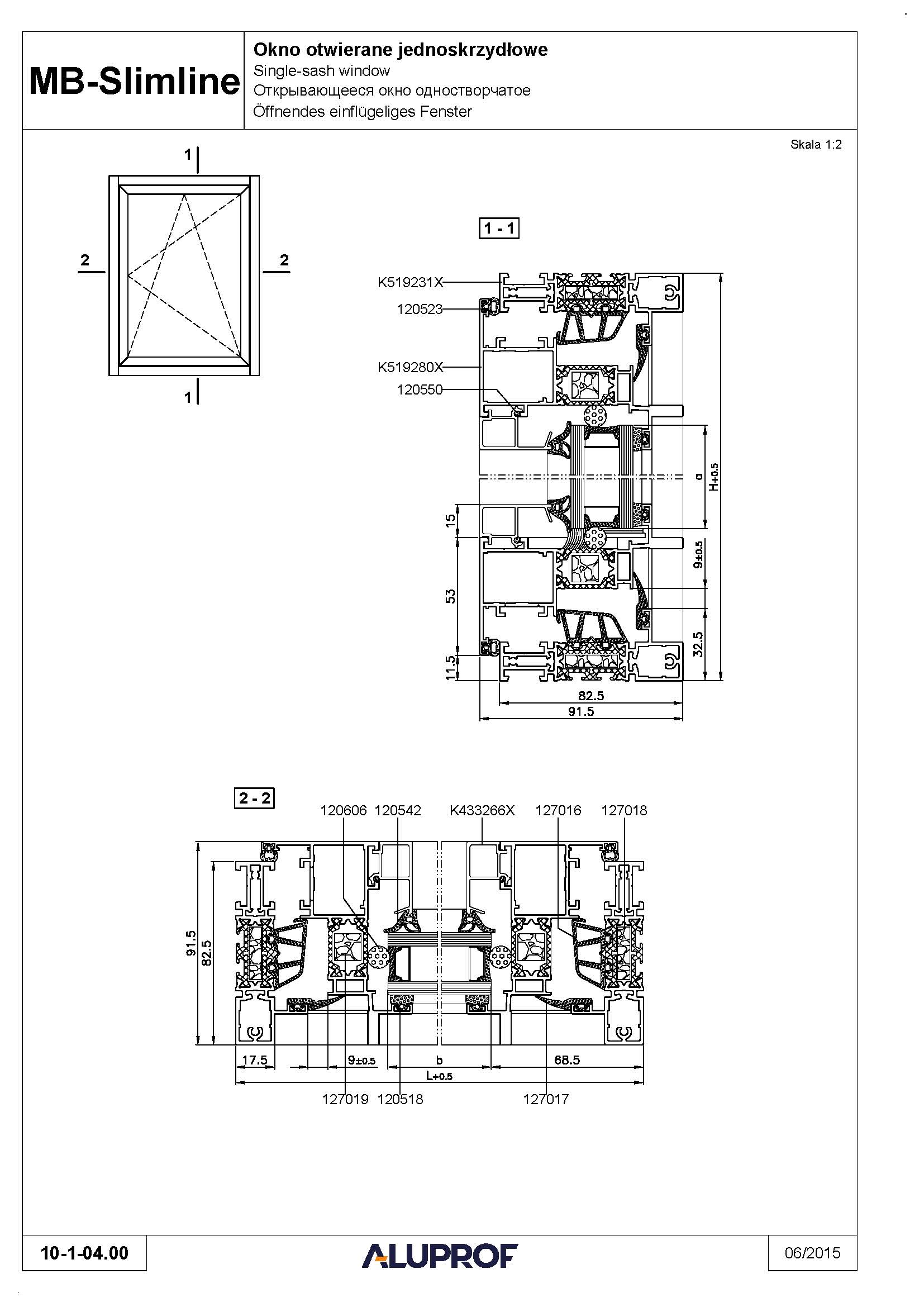
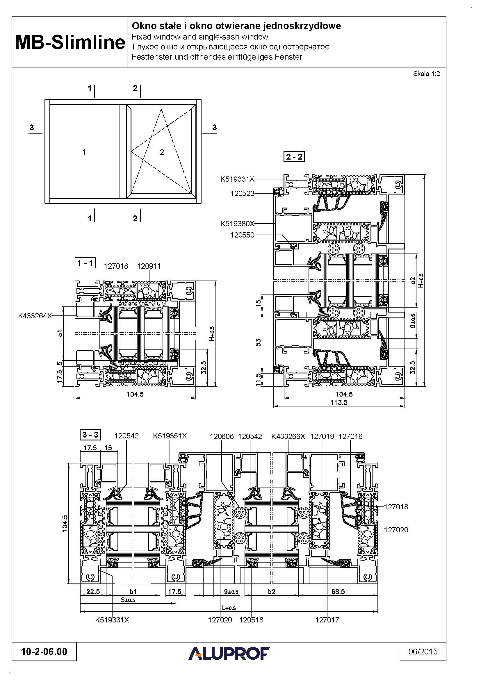
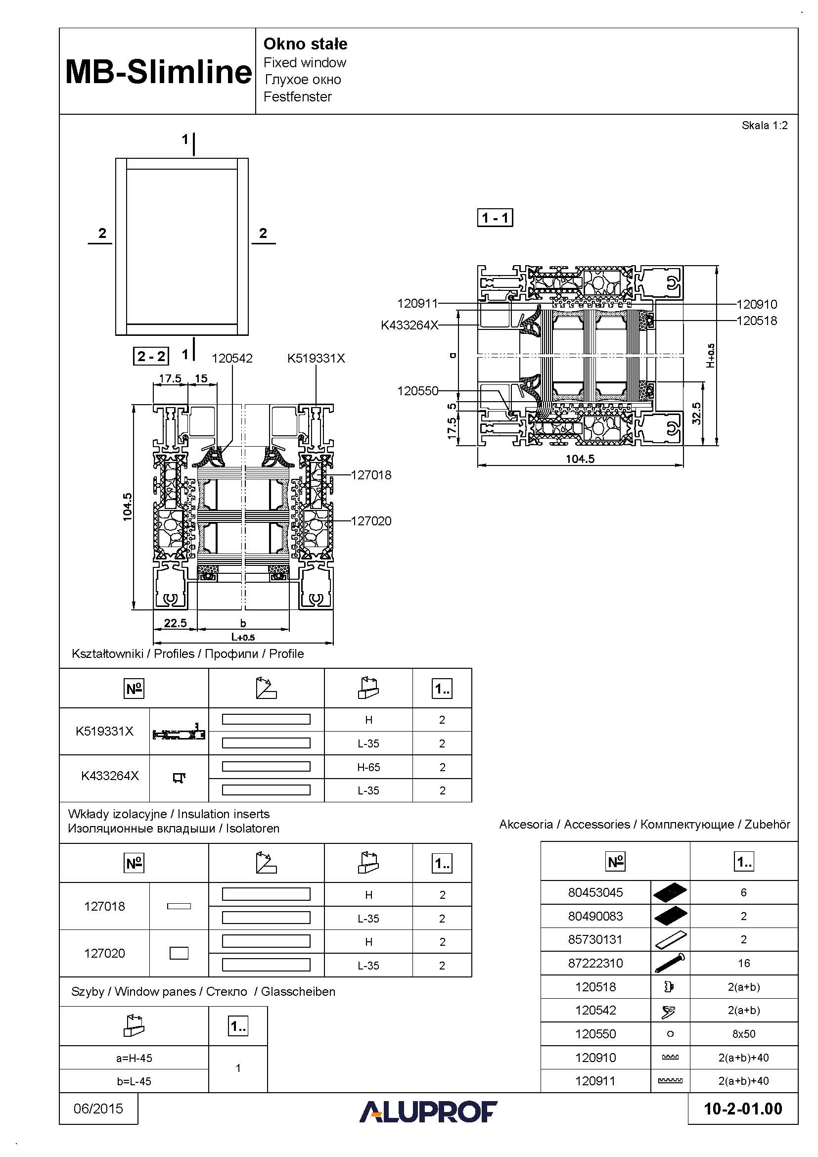
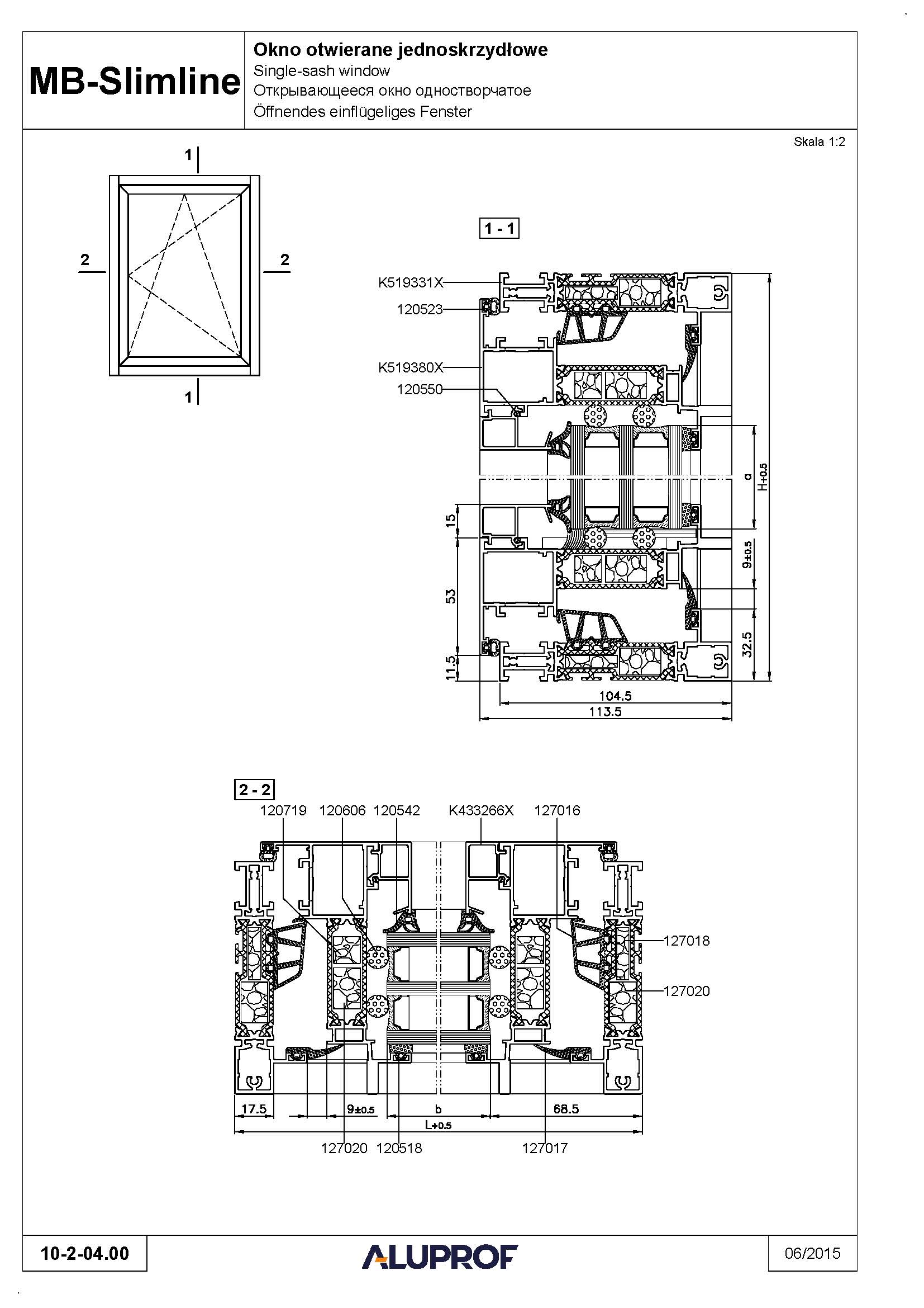
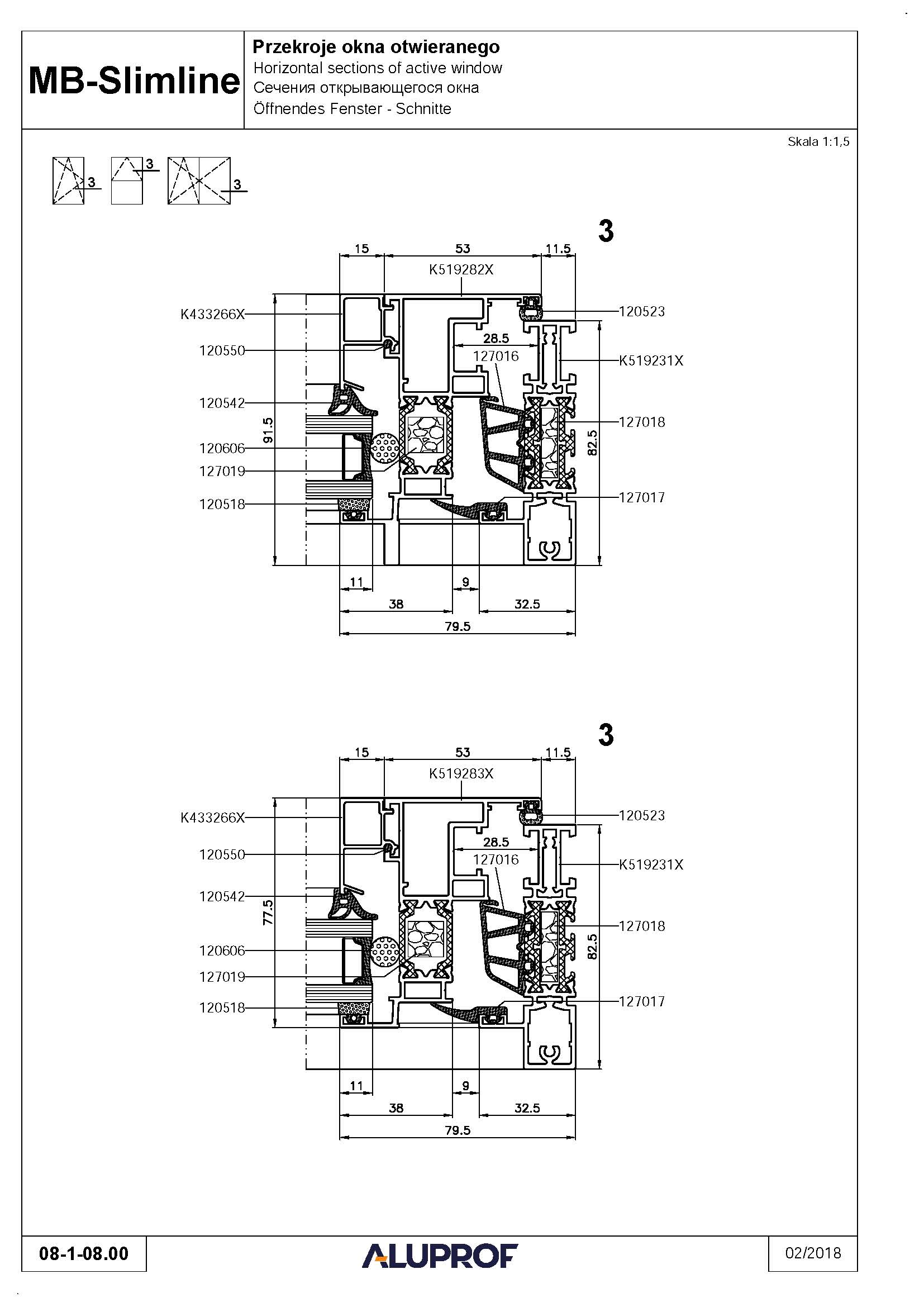
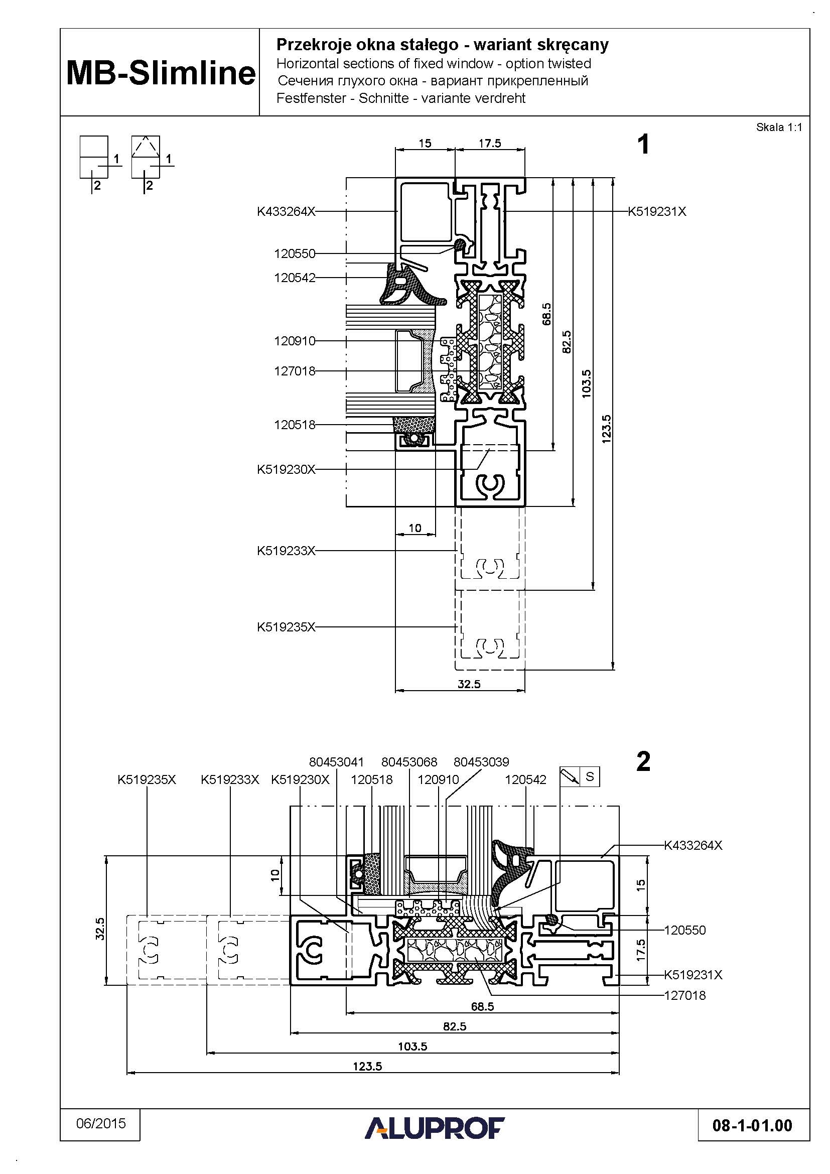
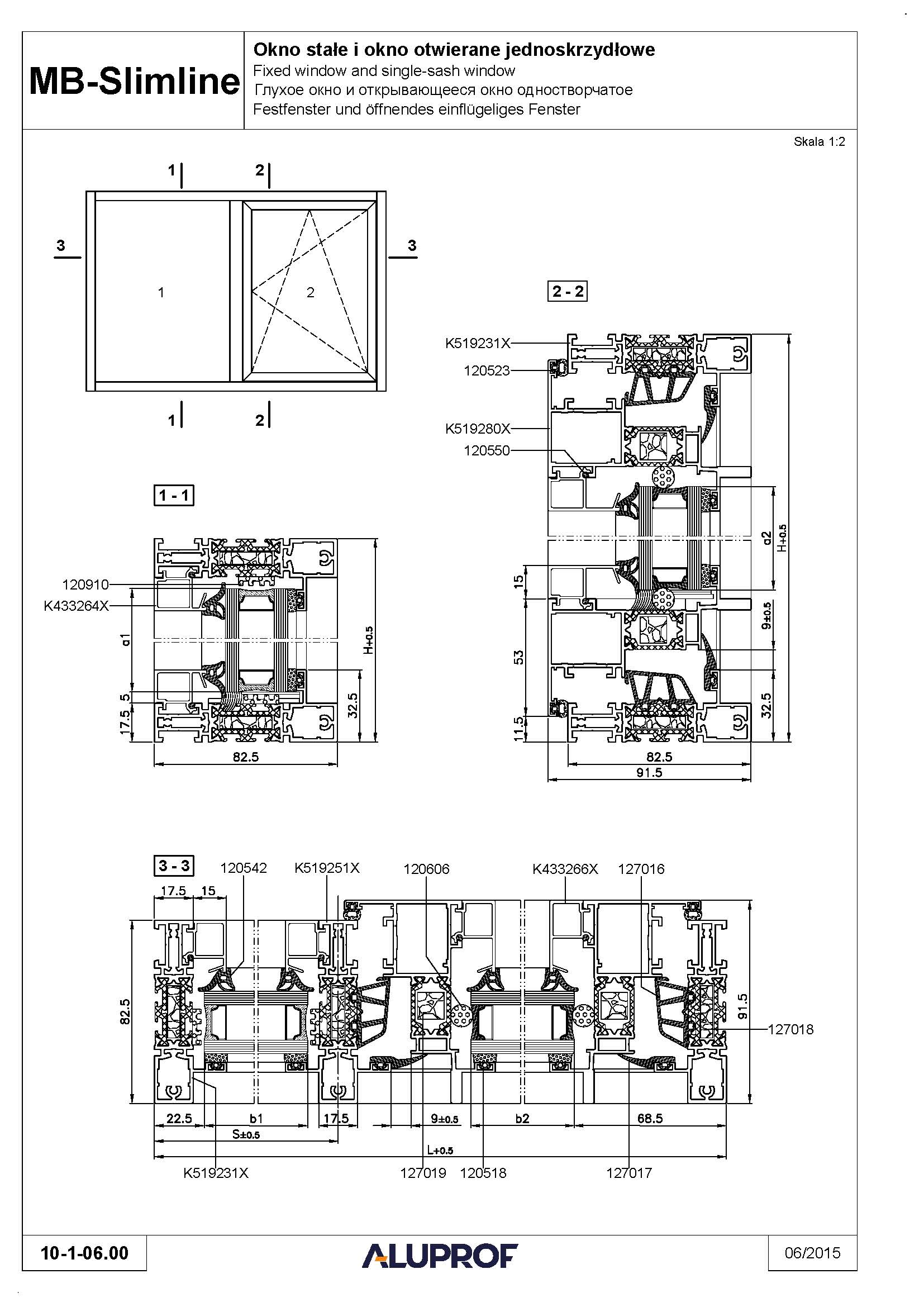
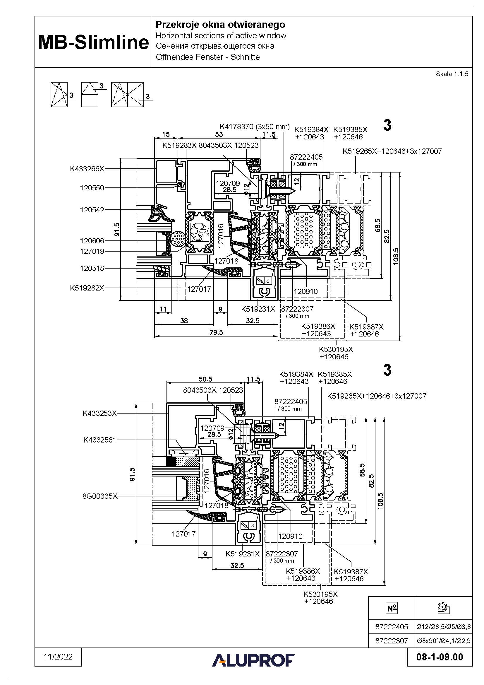
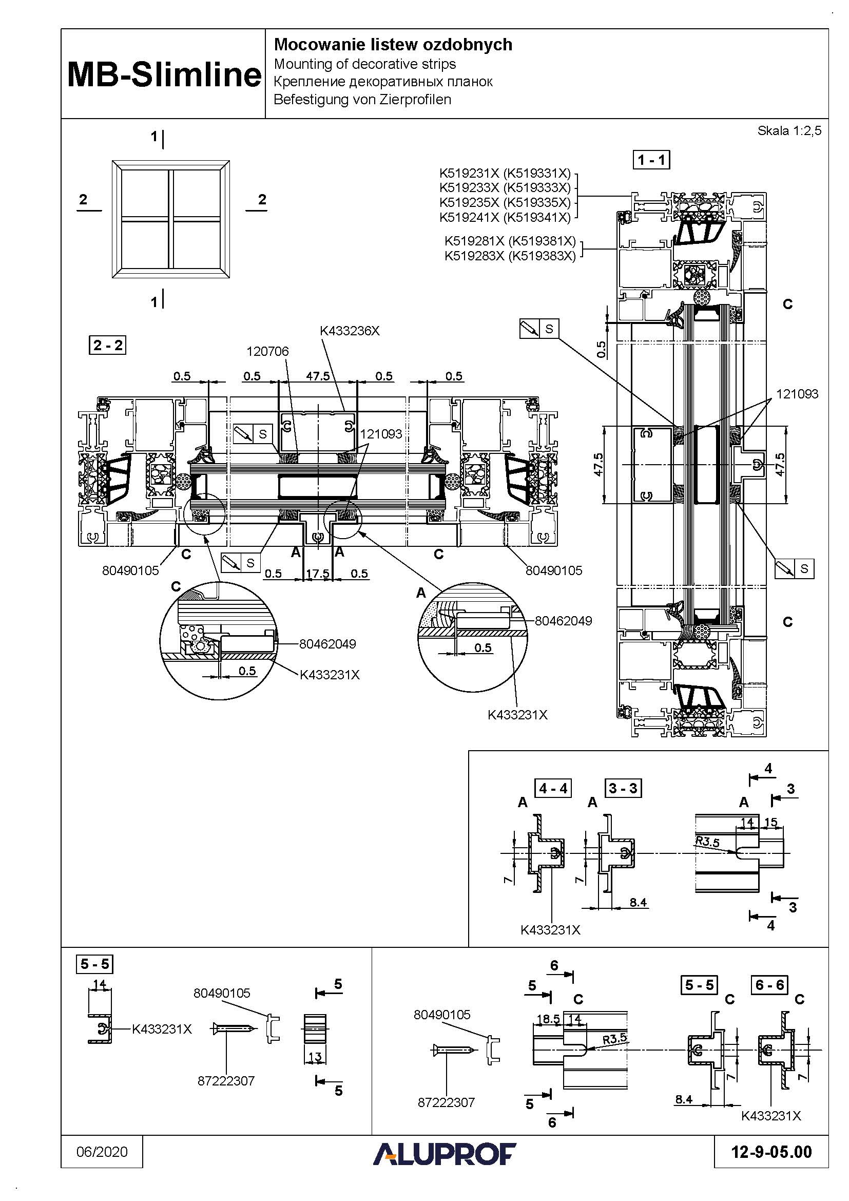
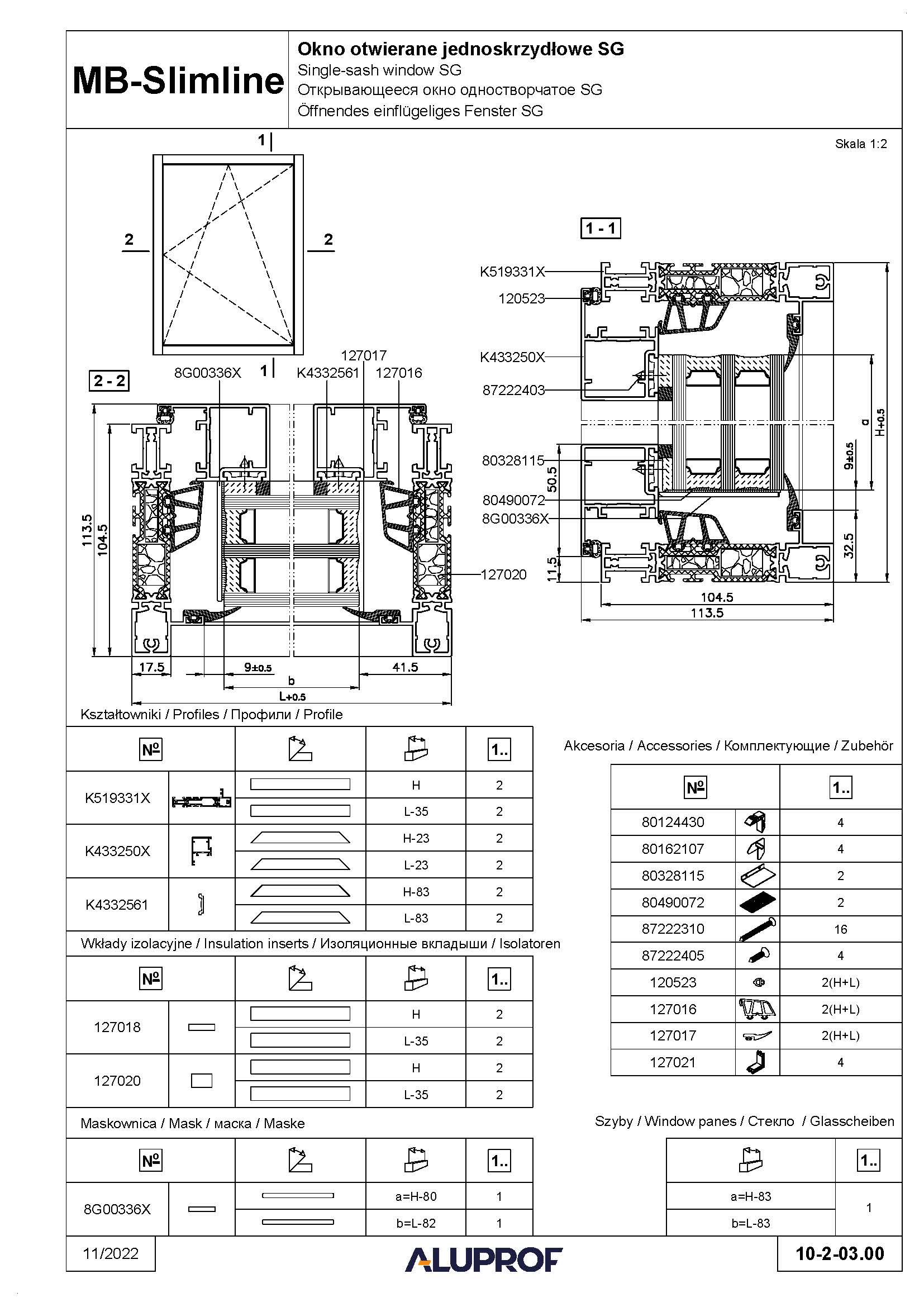
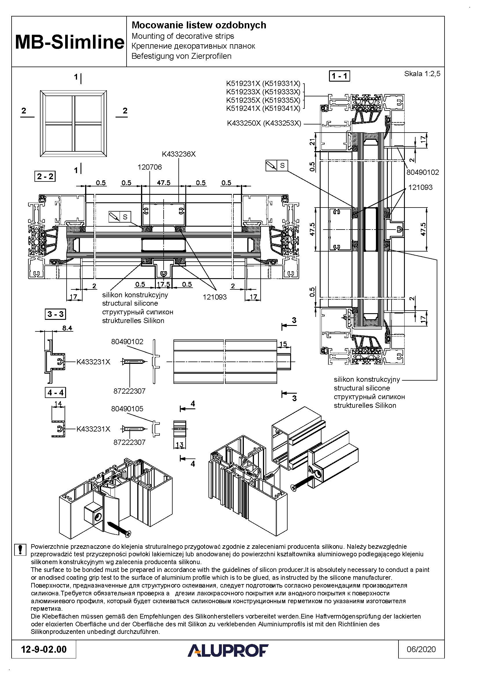
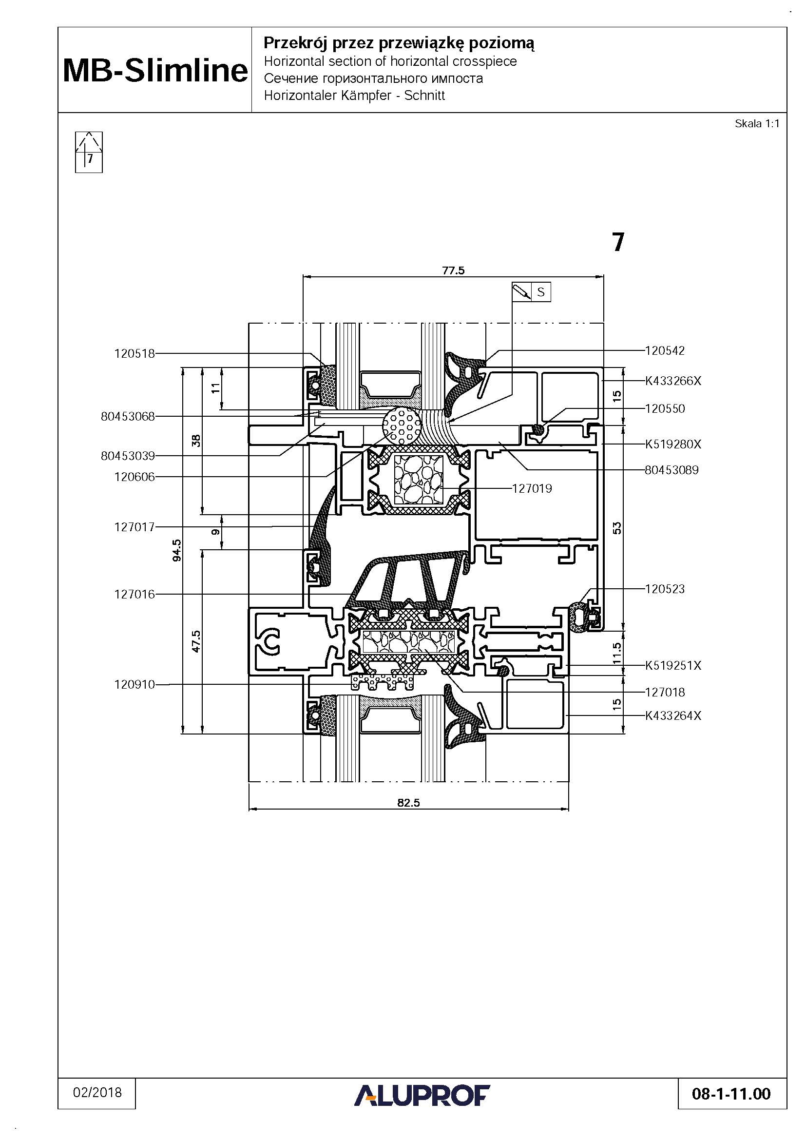
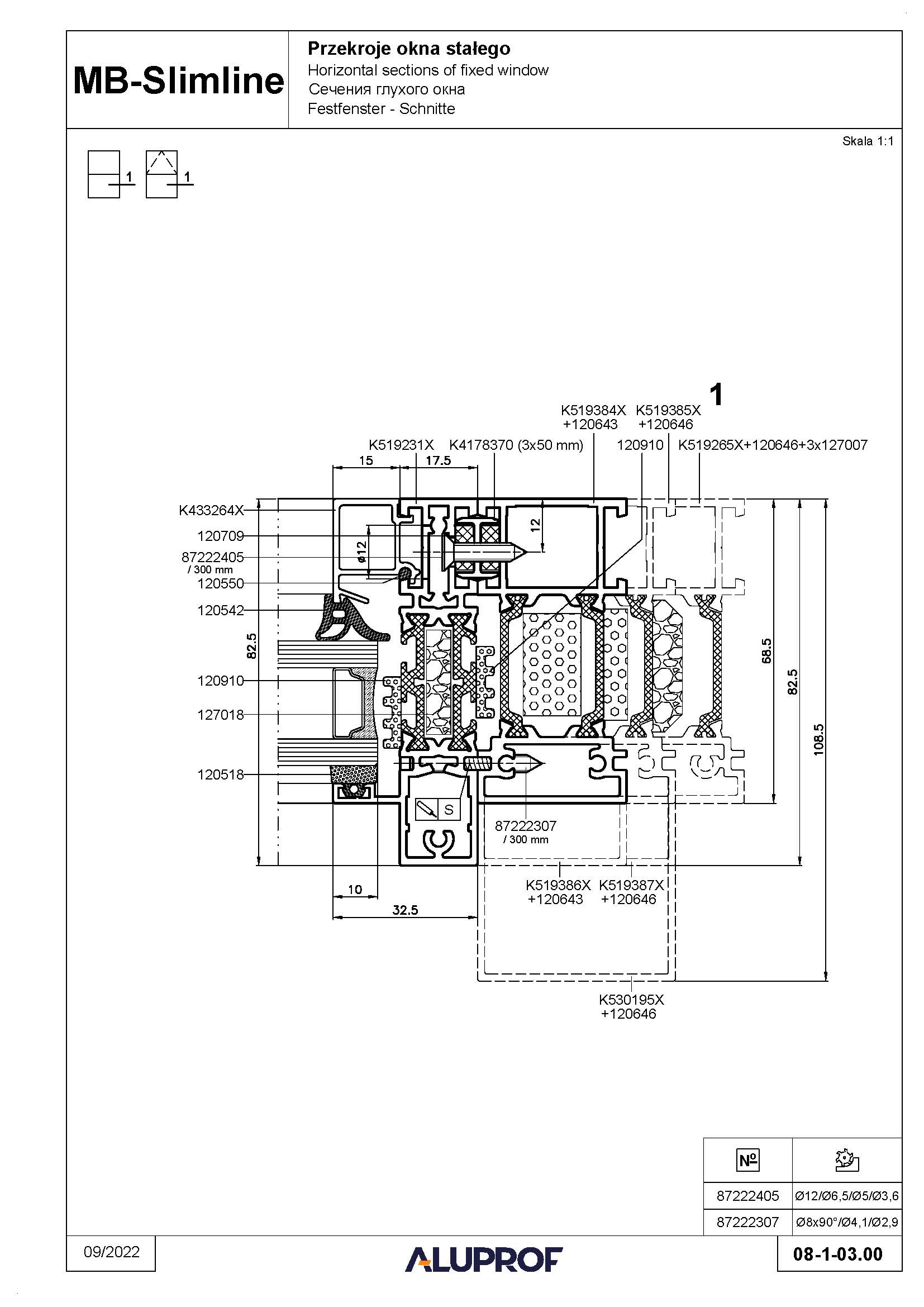
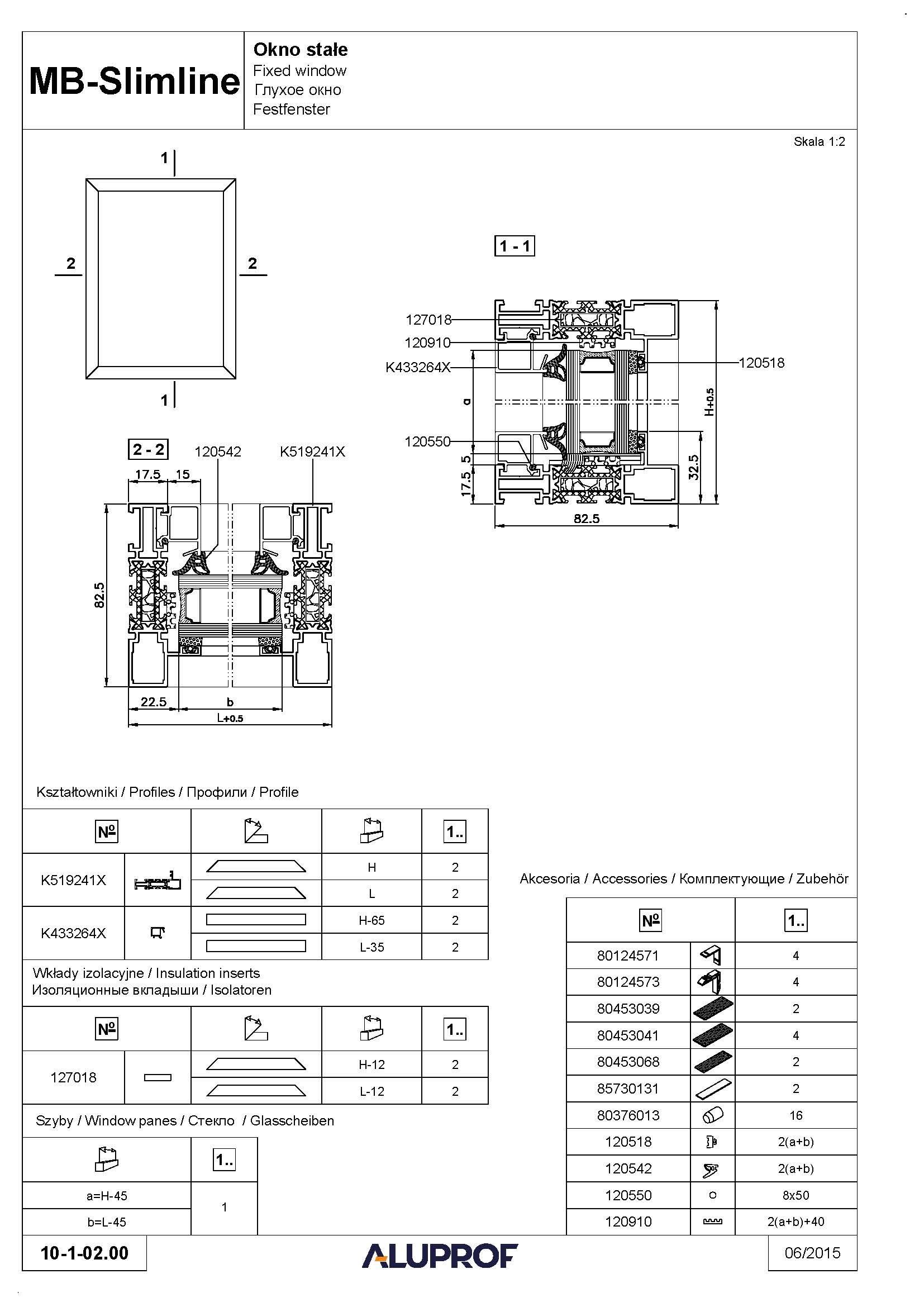
- Конструктивная ширина видимых алюминиевых профилей в неподвижных и активных окнах (опция SG) составляет 32,5 мм для рам и 47,5 мм для поперечных и перекладин. Ширина одинакова для всех профилей независимо от их прочности, толщины остекления и т. д. Ширина видимых профилей активных окон, предлагаемых в качестве опции с видимой створкой, составляет, соответственно: 79,5 и 94,5 мм. Конструктивная глубина оконных профилей варьируется и составляет от 68,5 мм до 123,5 мм (тип A) и от 90,5 мм до 145,5 мм (тип B) и зависит от используемых стеклопакетов (одно- или двухкамерных) и от требуемой прочности профилей. Также возможно использование других профилей, например, соответствующих специфическим требованиям здания.
- Коэффициенты теплопередачи для активных окон с однокамерным стеклопакетом и пластиковой межпанельной рамой (тип А) достигают значений Uw≥1,3 Вт/(м²К), тогда как в случае двухкамерной стеклопанели (тип В) значения коэффициентов теплопередачи превосходны и достигают значений Uw≥0,8 Вт/(м²К).
- Системные окна имеют стандартную конструкцию, не требующую дополнительных работ на этапе производства. Конструкция рамы и профилей перекладин, используемых в системе, включает три камеры, сердцевина которых образована изоляционной камерой, расположенной между теплоизоляционными прокладками шириной 30,5 мм или 52,5 мм. Профили створки, с другой стороны, бывают однокамерными без теплоизоляции (стеклопакеты конструктивно склеены) или трехкамерными (стеклопакеты устанавливаются с помощью штапиков).
- Для повышения теплоизоляционных характеристик центральная камера в составных профилях рам,
- перекладин и створок заполняется изоляционными вставками из пенополистирола (EPS), установленными между терморазрывами.
- Высокая герметичность по отношению к проникновению воды и воздуха, а также превосходные теплоизоляционные характеристики достигнуты благодаря особой форме центрального уплотнителя, разделяющего пространство между створкой и рамой на несколько частей, и благодаря уплотнительным уплотнителям для остекления и закрытия.
- Стеклопакеты в неподвижных и подвижных окнах с видимыми профилями устанавливаются с использованием штапиков и уплотнителей. Закрытая форма штапиков обеспечивает надежную установку вставок. Для облегчения установки штапиков в них устанавливаются позиционирующие ролики из EPDM. Стеклопакеты дополнительно приклеиваются к профилям для достижения большей жесткости конструкции.
- Стеклопакеты, установленные в створках, приклеиваются к алюминиевым профилям конструкционным силиконом. Склеивание может выполняться компаниями, прошедшими обучение у производителей конструкционных силиконов, и процесс должен тщательно контролироваться, что гарантирует получение надежных соединений.